
Measurements - Studio
Worked with Alex Liao
ARC480 | Winter 2024 | Zachary Mollica
Agisoft Metashape | CloudCompare | Rhino | Illustrator | Photoshop | Vray | Unreal Engine
Ruler & Laser Measure | Photogrammetry
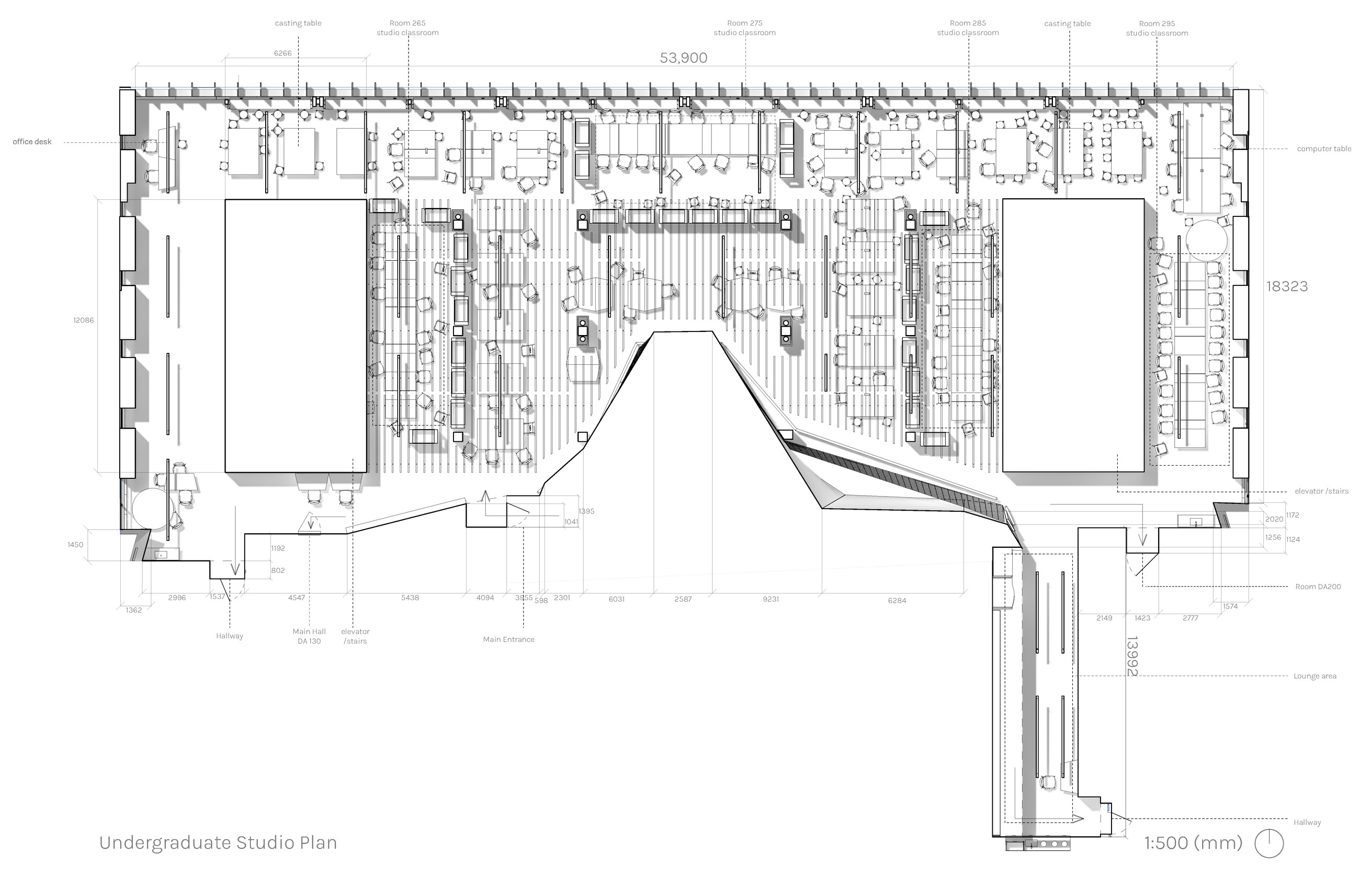
This project examines the studio that most undergraduate students often occupy and analyzes the surrounding space to assess the stability of the studio if it were to accommodate all undergraduate students. It takes the dimensions measured from analog measurements and, using photogrammetry inside the studio, determines its practical usage to verify whether it can accommodate all 1,200 students.
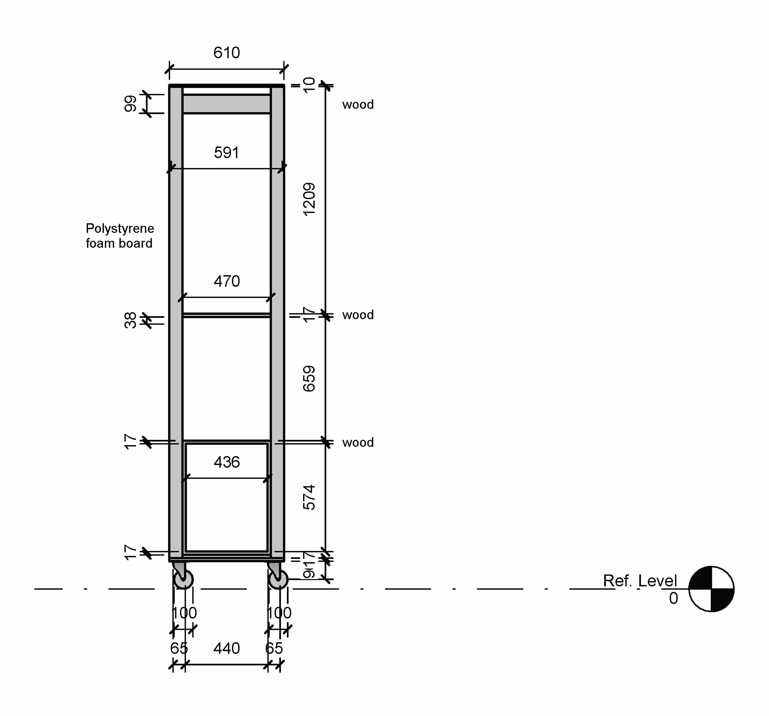
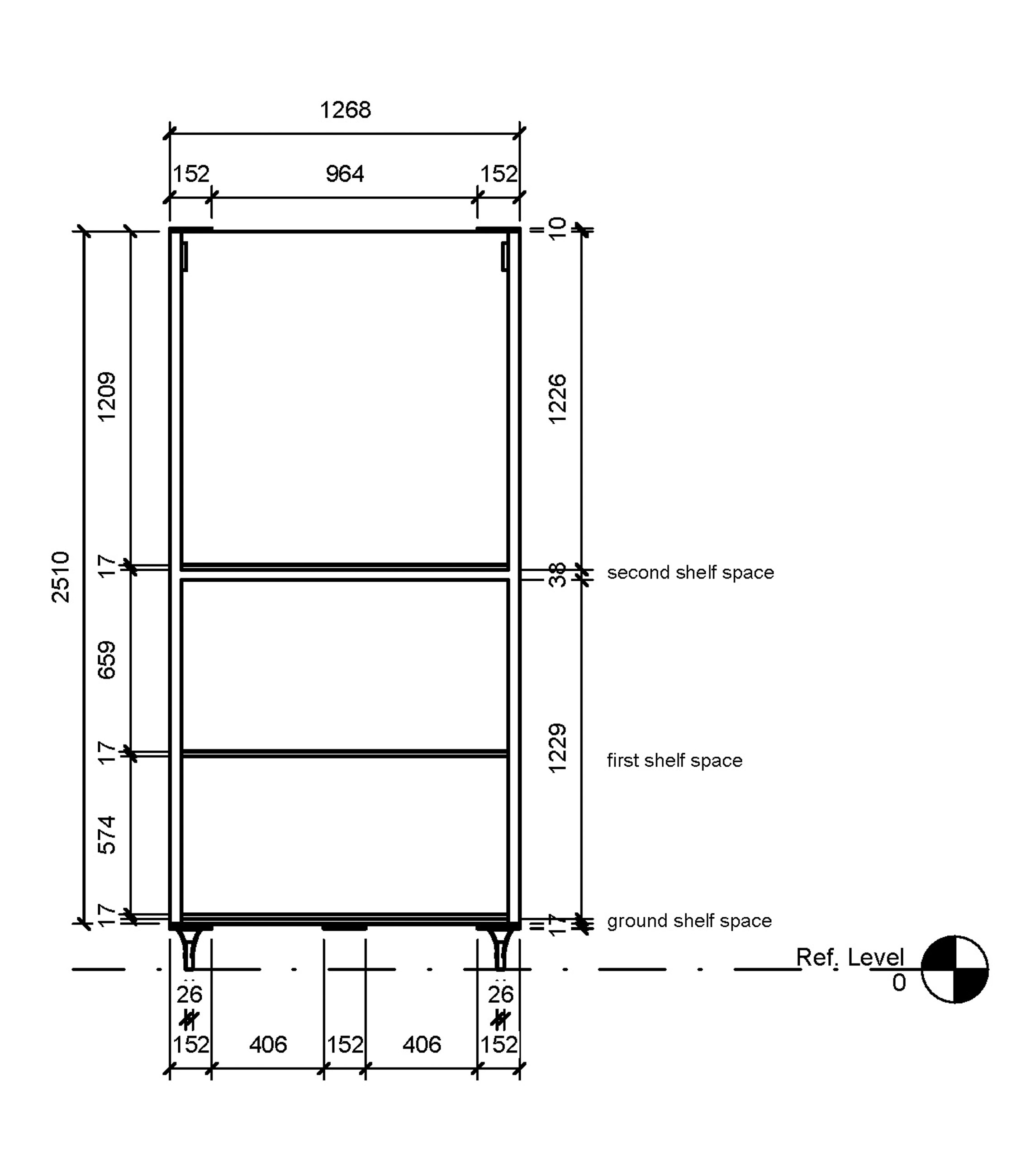
Sketches of furniture dimension inside Undergraduate Studio, drawn on graph paper - measured with ruler, tape measure, and laser measure, drawn in Revit.




Photogrammetry scan of the undergraduate studio
- interior view of studio with 1200 students
- interior view 2 with 1200 students - Rhino Vray, Illustrator
Unreal Engine renderings of the undergraduate studio with 300 students
