
Disrupt
Individual
ARC201 | winter 2022 & winter 2025
Rhino | Vray | Photoshop | Illustrator | Laser cutter
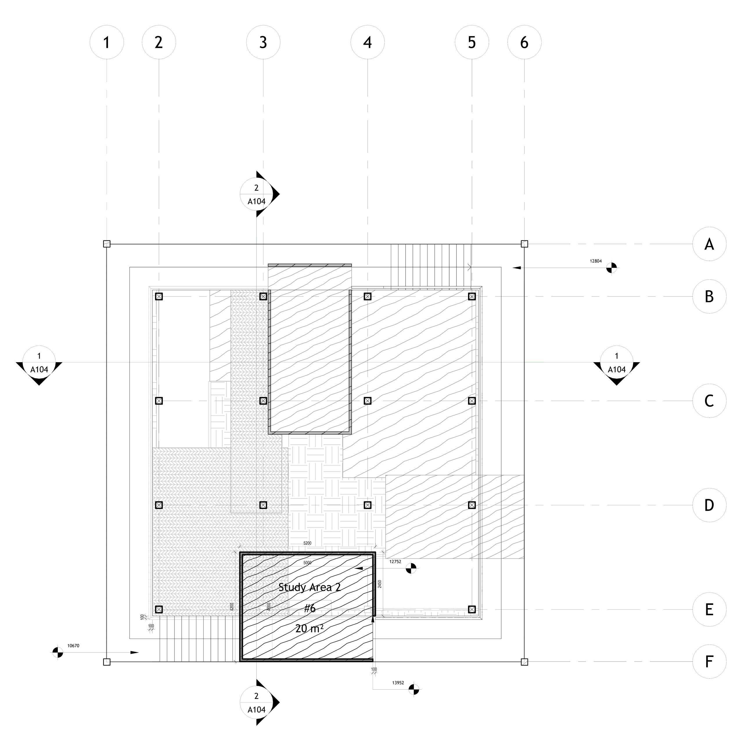
This is an in-depth design of a multipurpose student common building, where the entire building is designed to
aid any students in finding places to study and rest between classes. There was a size limit of 16m X 16m X 16m,
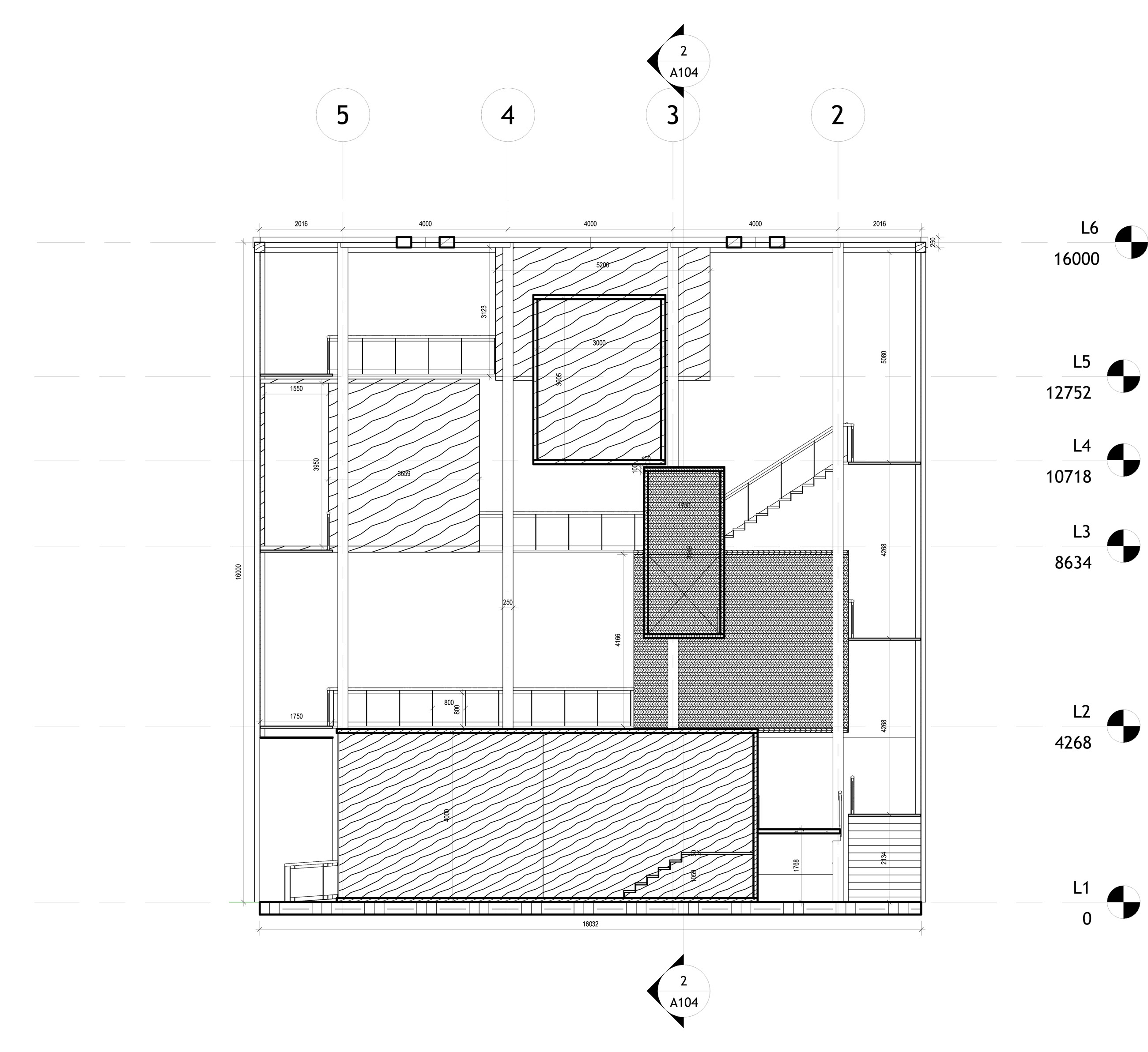
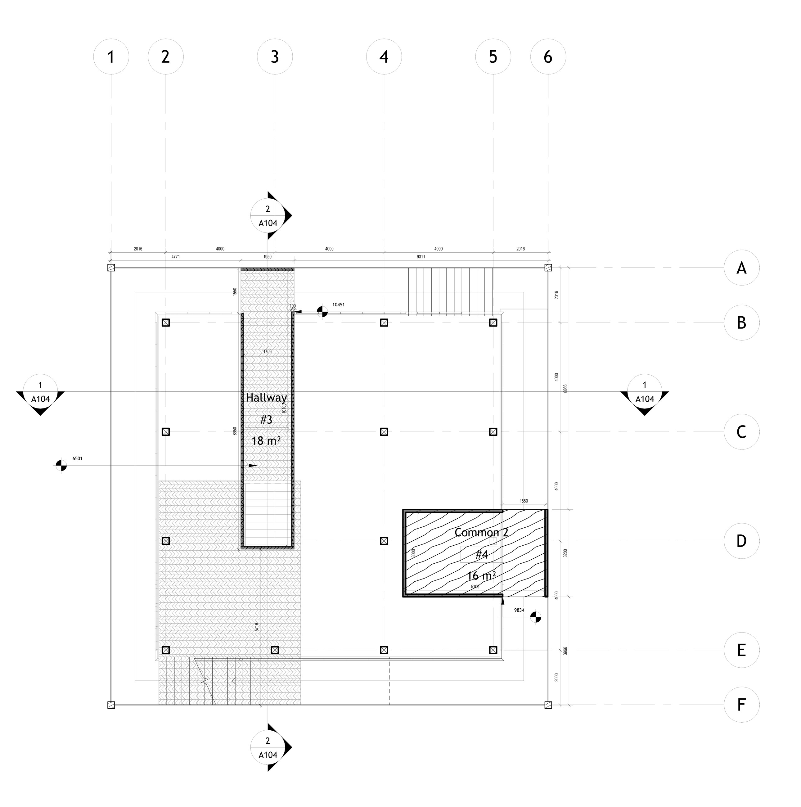
with 16 columns spaced evenly, and my task was to create a creative workaround solution to maximize space usage. Utilizing these limitations, I designed a building featuring a glass box that encompasses smaller public
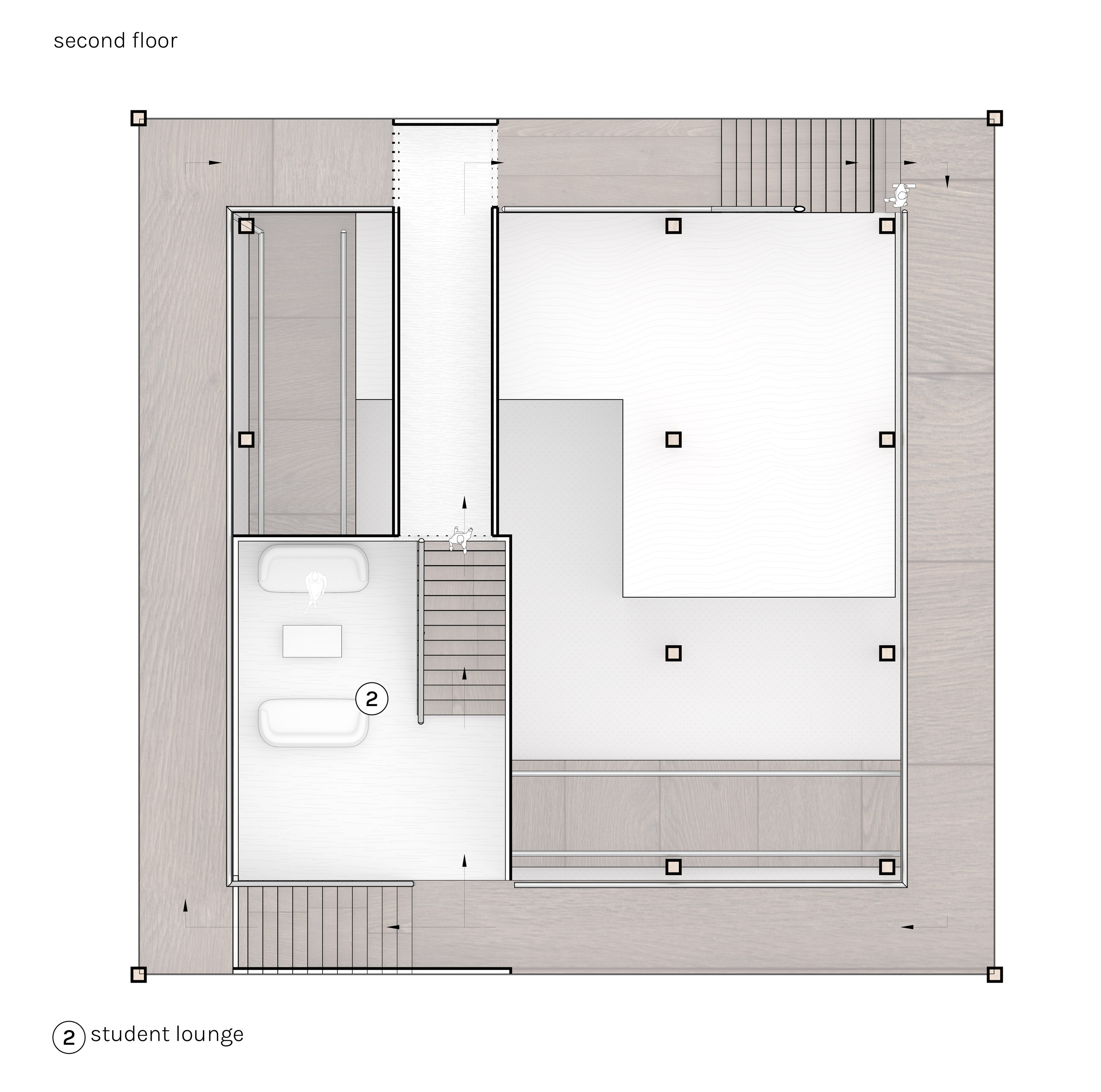
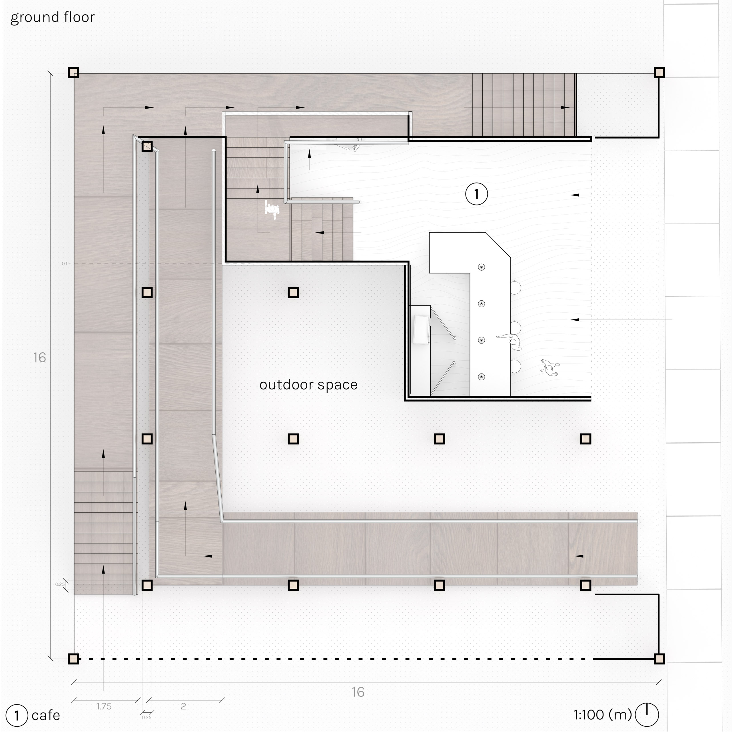
spaces, with circulation routes located along the perimeter of the box. The building is designed for student use and features three floors, each with its unique program. The first floor features a public café, the second floor serves as a common area, and the third floor is reserved for a private study area.
Process:
- picked a verb to become the set theme when designing the building. (main theme of the course) - design created by verb is most beneficial when it is provacative. =
“to disrupt”
Does the whole design align with “to disrupt?”
Draft Drawing of the wall systems to follow the theme “to disrupt”.
concept model of the wall systems. Made with paper and paper straws / Full 1:50 model of wall systems. Made with foam boards and wooden dowels
Draft drawings of the flooring systems to follow the theme “to disrupt”. / Process and projections of the flooring system. Made with Rhino and Illustrator.
Best option was to create 7 different spaces to act as rooms and place them within the permittable space of 16m X 16m X 16m. Hence, the building design was created as one long spiral circulation within the perimeter of the space and the 7 rooms intersecting in between, disrupting the circulation.